

מזה 19 שנים אני מתמחה בניהול העיצוב בפרויקטים בנדל"ן, אחראית על תרגום שפת המותג לעיצוב פנים.
עיצוב לובאים ושטחים ציבוריים
עיצוב שימשיך לייצג אתכם בכבוד שנים קדימה, ניסיון רב בהתאמה לתקנים ותקציבים, עובדים על Revit / AutoCAD בסביבת ACC/BIM
תכנון ועיצוב משרדי מכירות
התמחות בתרגום מותג למקום: תכנון אדריכלי מאפס ועד עיצוב פנים מלא.
עיצוב וירטואלי
ייעול תהליך עיצוב ההדמיות ע“י יצירת קו עיצובי מותאם לשפת המותג וניהול התהליך מול חברת ההדמיות עד התוצאה הרצויה.
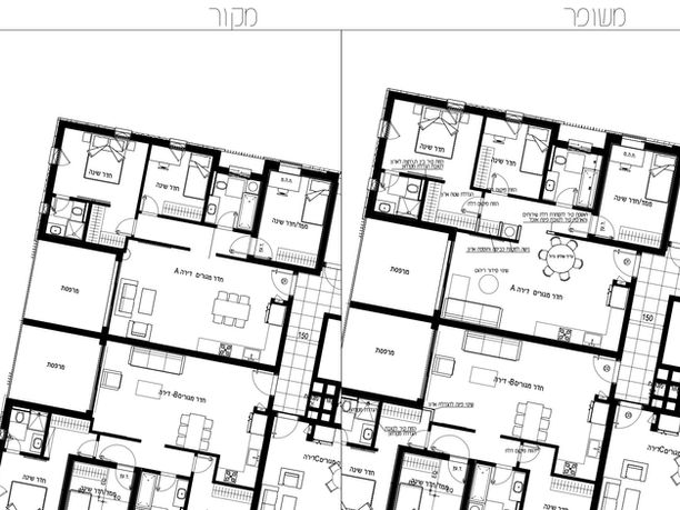
טיוב תכנון טיפוסי דירות
תהליך קצר ויעיל של מקסום פוטנציאל הדירות דרך שיפור תכנון פנים מותאם קהל מטרה כדי שתצאו לשיווק עם המוצר הטוב ביותר.
בין הלקוחות שלנו
נעים מאוד אני יפעת אשכנזי שוחט
.מתכננת ומעצבת מקומות אנושיים, יזמית ומדריכה הוליסטית לעצמאים ומנהלים
הסקרנות שבי הובילה אותי ללמוד הרבה דברים נוספים מעבר לאדריכלות ועיצוב פנים
מפסיכולוגיה של עולם המיתוג, דרך יזמות, ועד בניית עסקים מבוססי ערך שמשאירים חותם חיובי בעולם
ומזה למעלה מעשור אני חוקרת ולומדת מגוון רחב של תחומים שעוסקים באנרגיה שקיימת בכולנו, בכל חומר ובכל מקום ביקום המופלא הזה שבו אנו חיים
חקרנות זו והגילויים שהגיעו איתה, יחד עם הרצון העמוק לחיות מתוך תשוקה, מהות ומשמעות עזרו לי לגבש דרכי עבודה מבוססי אכפתיות
בתחילת דרכי לפני 19 שנים כאישה בעלת חיישנות ריגשית גבוהה דיברתי רבות על עיצוב מבוסס רגש
בהמשך זיהיתי את הצורך באדריכלות שיווקית שמתמקדת בתרגום מותג למקום עבור פרויקטים בנדל“ן ויחד אתכם דואגת שתספקו את המוצר הכי טוב שלכם
ואז שנים של לימודי תודעה הולידו את מודל משרדים אנושיים שהשליחות שלו היא יצירת סביבות עבודה בריאות שתומכת בצרכים האנושיים של בני האדם
ואני שגרירה של הנושא החשוב הזה דרך עבודתי וגם בהרצאות שאני מעבירה על ההשפעות החיוביות וההרסניות של סביבות העבודה בימינו
והיום אני מעמיקה בלימודי בנייה ירוקה ובריאה מתוך תחושת אחריות חברתית להשפעה שיש למקצוע שלי על הבריאות של בני האדם והעולם
דבר נוסף שממלא אותי זה היותי מדריכה הוליסטית שמלווה אנשים לאיזון גוף/רגש/ראש/נשמה כבסיס לאושר ומנהיגות אישית
אני גם מתנדבת בעמותת יוזמות עתיד שעוזרת ליזמיות ועצמאיות בתחילת דרכן
הסטודיו מציע שירות אישי, קשוב ואנושי כשאני נוכחת בכל שלבי התכנון והעיצוב בפועל, יחד עם הצוות שלי שמשלים אותי לכדי תהליך יעיל ומקצועי

.jpeg)



































































































